Rénovation d'une résidence secondaire à l'Île d'Oléron 17310

Besoin client

Nos clients possèdent une résidence secondaire à l'Île d'Oléron, une maison de plain-pied grande, mais ancienne et peu fonctionnelle, avec une décoration intérieure démodée et des réseaux non sécurisés. Une rénovation générale de la maison s'impose donc pour la mettre au goût du jour et aux normes, et en profiter pour installer des équipements moins énergivores.

Projet

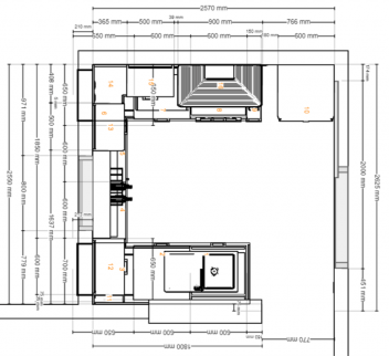
La réalisation de ce projet a nécessité une rénovation de maison presque complète et l'intervention de nombreux corps de métier du bâtiment. En effet, différents travaux ont été effectués à partir de plans : 

  • réagencement des couloirs pour valoriser les volumes et apporter de la lumière
  • rénovation de cuisine avec remplacement du mobilier et équipements électroménagers
  • rénovation de salle de bain avec remplacement des équipements sanitaires et des meubles
  • rénovation globale de la plomberie et création de regards extérieurs
  • pose d'un nouveau système de chauffage pilotable à distance
  • installation d'une VMC performante
  • rénovation électrique générale avec pose d'un nouveau tableau de répartition, mise à la terre et installation d'un système de sécurité incendie
  • traitement antiparasitaire des poutres de charpente apparentes et dans les combles
  • remplacement de la porte d'entrée par un modèle à galandage
  • travaux de peinture et remplacement des revêtements de sol intérieur dans toute la maison. 

 

Pour tous vos travaux de rénovation de résidence secondaire  La Maison Des Travaux de Rochefort, Saint-Jean-d'Angély et l'Île d'Oléron ! 

Les plus

Pour mener cette rénovation de résidence secondaire, notre courtier a accompagné les clients à chaque étape du projet, notamment sur le choix des revêtements de sol et muraux ainsi que des équipements sanitaires. En outre, nous avons réalisé les plans pour la cuisine et la salle de bains.

demander un devis gratuit